中经网·中经在线讯(王海珠 王启明)寿阳县隶属于山西省晋中市,地处太原、阳泉、榆次三市之间,距石家庄、郑州、天津、北京等大城市较近,石太铁路、307国道和省道榆盂公路贯穿全县,太旧高速公路横贯县境47公里,把寿阳纳入了全国高速公路网络。寿阳经济技术开发区位于寿阳县朝阳镇半月村,于2019年7月31日经山西省人民政府批复设立,纳入省级开发区管理序列。

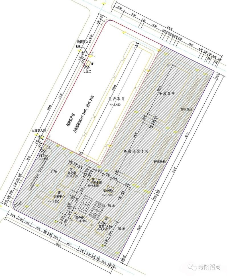
据寿阳县招商局消息:寿阳经济技术开发区现有厂区一座,该厂区基础设施完备、交通优势明显、自然环境优美。该厂区地处县城南5公里省道旁边,交通便捷,驱车5分钟内到达太旧高速口,距307国道5公里。厂区现已建成面积16880.46平方米(其中办公楼、研发楼、食堂、宿舍楼等6659.86平方米,生产车间10220.6平方米)。目前,厂区二期约有80亩空地尚未建设,可新建厂房约30000平方米以上(也可根据需求调整规划)。办公楼、食堂、宿舍楼、生产车间均已装修,生产、办公、生活设施及配套设施一应俱全。
厂区内基础设施完善,电力充沛,园区可提供220kv、110kv、35kv、10kv等不同等级供电线路。厂区内建设有配电房,配备三台变压器,容量1550KVA(一台800KVA、一台500KVA,一台250KVA)。



项目合作可采取如下方案:
一、固定资产入股合作
二、厂区租赁
(一)、生产车间租赁:钢结构厂房,长238.8米,宽42.8米,高8.45米,面积10220.6平方米,价格:10元/平方米/月、次年上浮5%。
(二)、办公楼租赁:三层框架结构,占地面积676.7平方米,建筑面积2030.1平方米,已装修,家具齐全,拎包入驻,价格15元/平方米/月、次年上浮5%。
(三)、研发楼租赁:三层框架结构,占地面积839.5平方米,建筑面积2497.2平方米,毛坯,可自行装修,价格:前三年5元/平方米/月、三年后15元/平方米/月、次年上浮5%。
(四)、生产车间、办公楼、研发楼可整体租赁,也可单体租赁,具体方式根据需要面谈。

(图为厂区租赁展示图)
三、资产转让
(一)、方案一:转让83.6亩土地及地面建筑物宿舍楼、食堂、配电房、锅炉房,具体价格面议。

(图为方案一展示图)
(二)、方案二:转让102亩土地及地面建筑物办公楼、研发楼、宿舍楼、食堂、配电房、锅炉房,具体价格面议;

(图为方案二展示图)
四、其他方式可采取“一事一议”
如果屏幕前的您正因手中项目厂区的选择而困惑,想必这座厂区的出现会让您感觉眼前一亮。关注寿阳招商微信公众号,拨打我们的电话,寿阳招商竭诚为您服务!
荐稿:寿阳县招商局 刘碧静
综合发布:中经网·中经在线
编辑:王海珠 熊辉 王启明

■中经网·中经在线核心团队成员——聚力打造产业智库综合赋能平台,助推地方经济、企业高质量发展!
■联合国世界旅游组织专家团队-助力各地打造“世界级旅游目的地”
■《中国企业报》集团经济发展研究院院长邢星:将开辟资本市场发展新航道

作为经济发展的“助推者”,中经网·中经在线联合国际高新技术研究院、国际院士科技创新中心、北京各省市驻京机构商务协会、京忠智库及各省市人民政府驻京办、各省市商协会、上市公司、500强企业、央企国企、各大金融机构等高端资源,被誉为赋能经济“三驾马车+”超级资源综合赋能平台,充分发挥“融媒体集群矩阵+商协会政企合作+专家智库赋能+”的特殊资源优势,助力地方政府招商引资,以独特的资源优势赋能企业发展。
中经网.中经在线专家智库汇集了中国管理科学研究院媒体中心、《中国企业报》集团经济发展研究院、《中国企业报》集团证券市场研究院、联合国世界旅游组织、联合国经社部世界酒店联盟、中国民族贸易促进会、中国食文化研究会、中智科学技术评价研究中心、北京各省市驻京机构商务协会、京忠智库、国际高新技术研究院、国际院士科技创新中心、北京高精尖科技开发院、纳斯达克(中国)金融中心等多家权威机构及院士专家组成的实战专家智库机构,按照中央指示精神,倾力服务于各城乡区域经济、科技成果转化、政府招商引资、工业园区提质增效、乡村振兴、文旅产业、民族品牌打造与大中型企业品牌经营创新项目为中心的智囊机构。将致力打造中国管理科学耀眼的中国名片,有力促进我国各区域经济、企业高质量发展!


声明:除原创内容及特别说明之外,推送稿件文字及图片均来自网络及各大主流媒体、微信公众号等公开渠道,我们对文中观点保持中立,仅供参考、交流等非商业目的。转载的稿件版权归原作者和机构所有,如有侵权,请提供相应证据证明联系我们删除。
百度搜索:中经网·中经在线“三驾马车”超级资源综合赋能平台-【十大对接“直通车”】


























